Schachtabdeckung aus Edelstahl (1.4301 / ASTM 304), begehbar (Klasse A 15 kN) mit Tränenblech in rechteckiger Ausführung.
Die Schachtabdeckungen aus Edelstahl von Hailo Professional in verschiedenen Abmessungen und Formen eignen sich zur Zugangssicherung und Abdeckung nahezu aller Einstiege und Öffnungen. Ob unterirdische Bauwerke im Trinkwasser- und Abwasserbereich, Kabelschächte in Tunnelbauwerken, Betankungsbauwerke für Flughäfen u. v. m. – je nach Bedarf in leichter Ausführung bis hin zur Schwerlastabdeckung Klasse F 900 kN.
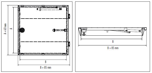
- Deckel:
- Aus 4 mm starkem Riffel- oder Tränenblech
- Rahmen:
- Aus Winkelprofil mit umlaufender frost- und witterungsbeständiger Dichtung
- Ausführung:
- Bodengleich
- mit verdeckt liegenden Scharnieren
- selbsteinfallende Feststelleinrichtung
- Verriegelung:
- Mit tiefer liegenden Verschlussschrauben abgedeckt mit Dreikant-Messingschraube

Hinweis
Zur Schachtabdeckung wird zwingend ein Bedienschlüssel benötigt!

| Hersteller | Hailo Professional |
|---|---|
| Material | Edelstahl |
| Kategorie | Schachtabdeckung |
Wir informieren Sie gern darüber, falls der Preis dieses Artikels Ihrem Wunschpreis entspricht.
* inkl. MwSt., zzgl. Versandkosten




.jpg)














.jpg)



.jpg)